7
提案數
4
諮詢數
1
成交數
91%
回覆率
- 室內空間設計
- 3D建模設計
- 3D渲染
擁有 12 年室內設計實務經驗,不只會畫圖,更理解工地怎麼跑。 從設計端到施工端,熟悉圖面整合、工班協調與現場執行邏輯。 擅長將設計概念轉化為「施工看得懂、業主放心」的呈現方式, 協助設計師有效控管進度、降低溝通成本, 成為設計與工地之間穩定可靠的後援。 只接“好客緣” 1.追求穩定交付與專業水準的設計師或業主 2.希望建立長期合作默契的夥伴 3.尊重專業、重視細節的合作關係,把時間留給真正懂得欣賞的夥伴。案量精簡,品質最大化,只服務重視設計與信任感的合作對象。」 著重3D設計品質與細節,呈現美感與氛圍兼具使用空間機能,讓客戶花費更值得 每一次合作對我們而言都是全力以赴的投入,也期盼對方同樣看重設計所帶來的價值。 本服務專注於品質與信任,因此不承接壓價型、隨興改動型、或缺乏尊重的合作付款流程不穩定、款項往來不夠誠信。我們相信,專業值得被珍惜。 市府行號於114年12月24號已核准設立,可開立發票 作品集:fb網站 目前還在整理上傳中喔 https://www.facebook.com/ying.hong.shi.nei.she.ji.gong.zuo.shi 為保障雙方權益並讓合作流程更清楚順暢,本案將簽訂正式合約,明確約定工作範圍、交付內容、修改次數、時程與付款條件。 合約簽署完成並支付訂金後,即正式啟動設計作業,以確保雙方權責明確並避免後續認知落差。
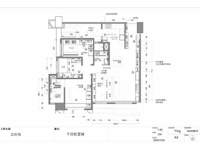
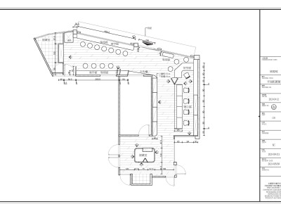
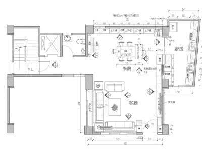
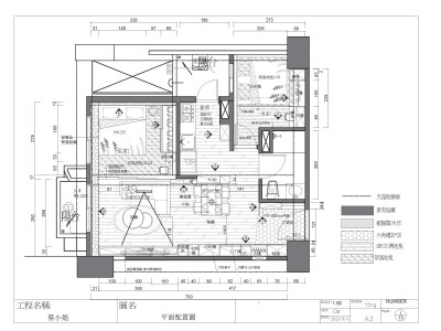
作品(13)
服務(2)
評價(1)
5.0
1 則真實評價
100%
專案完成率
1 件
諮詢印象
1 位案主聊聊滿意度
- 秒回神速1
專案執行
尚無資料,給新星專家一個展現的機會!
整體推薦
溝通契合
專業能力
準時交付
回覆速度
HOO
室內設計圖面代繪
2026/04/02 聊聊滿意度秒回神速您於 2026/04/02 回覆
您好?

