出任務 | 商業外包,一站搞定 商業外包,一站搞定

許先生

實名認證

(1)

接案身分:兼職上班族

上線時間:4小時前

接案地點:全台、可遠端

成交件數:2

接案類別:
# 室內空間設計 # 房屋/建築設計

分享連結

關於

曾任建築師事務所設計師,現職建設公司規劃部主任,參與多項公、私設計案,約15案已完工。擁有室內設計乙級證照,接案類型不拘,可加line詳談

相關連結:

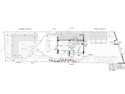
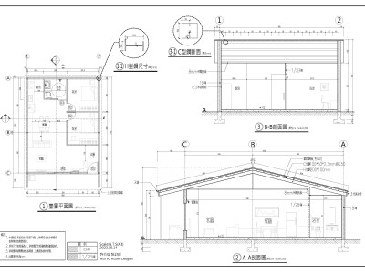
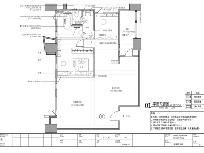
工作暨接案作品

*請告知會員是透過「Tasker出任務」取得聯繫。

擅長工具:

Photoshop、 illustrator、 SketchUp、 CAD、 Lumion、 inscape。

影音(0)

服務(0)

相簿名稱 1/1

提示