13
提案數
3
諮詢數
0
成交數
100%
回覆率
- 2D製圖
- 3D建模設計
- 水電及其他工程繪圖
- 土木營造工程
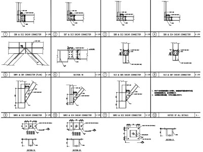
AutoCad 施工圖/撿料單/工程拆圖算料 Revit建築(BIM、MEP)-鋼筋建模、機構系統、碰撞檢查 Blander 3D建模 - 工程相關作品請洽私訊 依圖資報價
評價(3)
5.0
3 則真實評價
--%
專案完成率
尚無資料
諮詢印象
3 位案主聊聊滿意度
- 卓越超群1
- 秒回神速1
- 態度熱忱1
- 默契十足1
專案執行
尚無資料,給新星專家一個展現的機會!
整體推薦
溝通契合
專業能力
準時交付
回覆速度
電OO
商場水電B I M設計
2026/04/16 聊聊滿意度秒回神速蕭OO
施工圖代繪
2025/12/20 聊聊滿意度卓越超群默契十足許OO
消防
2025/10/27 聊聊滿意度態度熱忱

