[外包接案使用調查]
公告
如何發案
如何接案
幫助中心
數字APP
▾
8591寶物交易
591房屋交易
100室內設計
8891中古車
8891汽車
518熊班
熊班企業版
小雞上工
找師傅
關鍵的事,交給對的人
我要接案
找專家
全部專家
AI應用
商業設計
軟硬體開發
法律會計
翻譯寫作
企劃行銷
專業諮詢
攝影娛樂
生活服務
找服務
全部服務
AI應用
商業設計
軟硬體開發
法律會計
翻譯寫作
企劃行銷
專業諮詢
攝影娛樂
生活服務
熱門外包
AI 應用
平面設計
會計記帳
短影音拍攝
找行情
動態
聊聊
立即登入
案主
專家
帳戶中心
案件管理
登入 / 註冊
我要發案
出任務
>
找專家
>
無量空間設計
>
施工圖作品
無量空間設計
0
人諮詢
開始諮詢
房屋/建築設計
施工圖作品
38
・
2026/04/21 更新
平面圖
立面圖
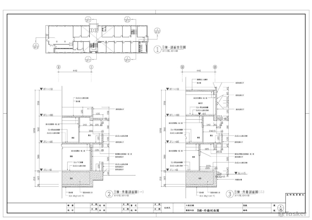
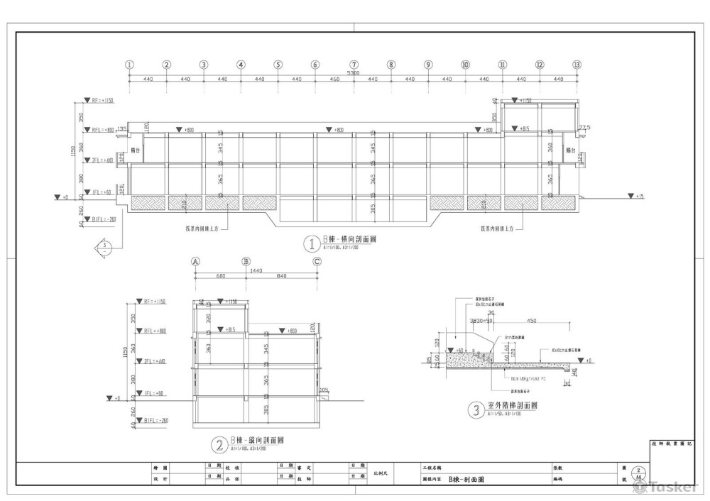
剖面圖
外牆詳圖
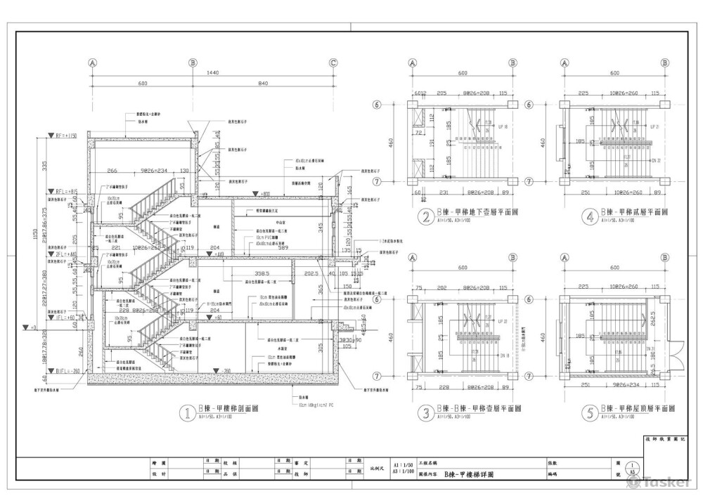
樓梯詳圖
更多來自 無量空間設計 的作品
建築3D模擬圖作品
3D建模設計
143
執照圖作品
房屋/建築設計
53
室內3D模擬圖作品
3D建模設計
124
無量空間設計
一週前上線
平均 -- 回覆
開始諮詢
無量空間設計
0
人諮詢
一週前上線
平均 -- 回覆
開始諮詢