展開側邊欄位的漢堡樣式按鈕

室內空間設計

室內設計平面圖範例

80
2026/04/21 更新

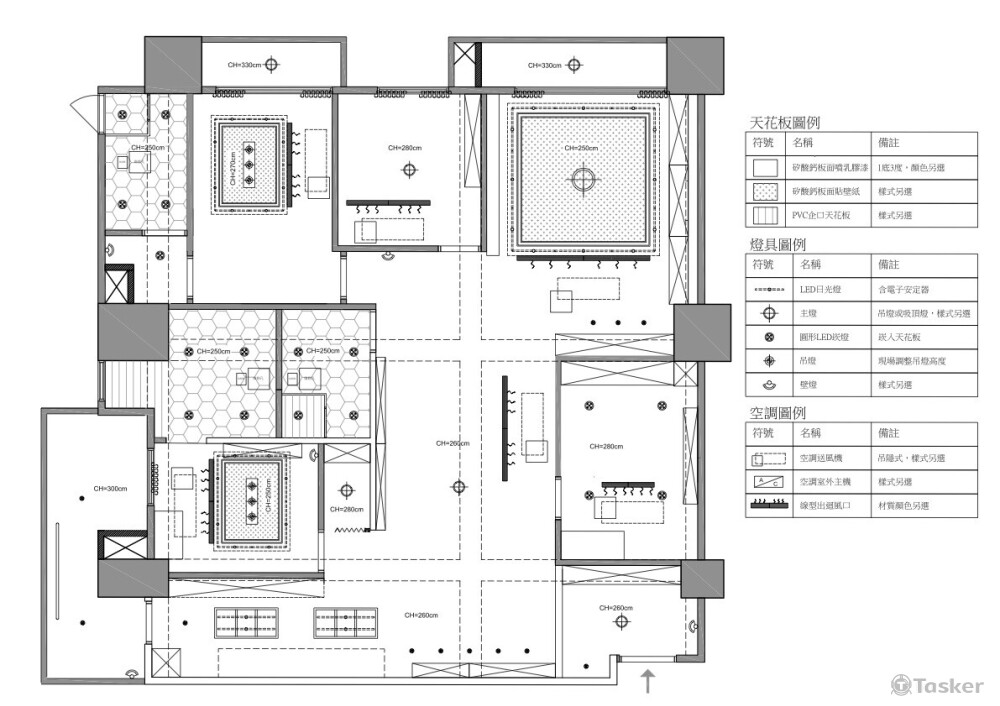
室內設計平面配置圖範例

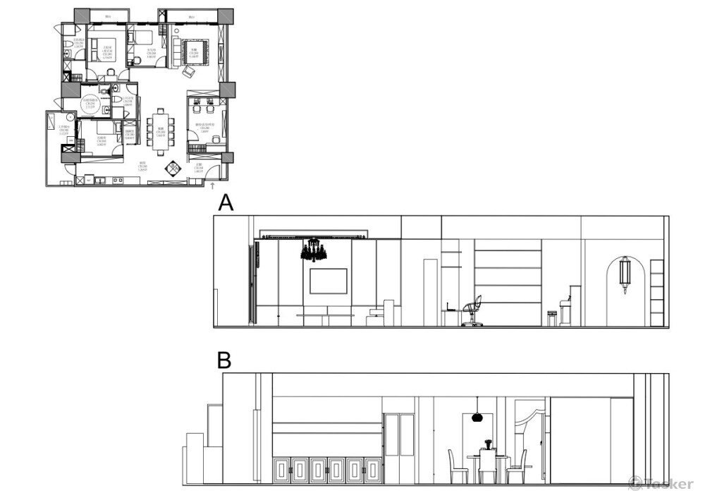
室內設計剖立面圖範例

室內設計天花板圖範例

室內設計2D彩圖範例一

室內設計2D彩圖範例二

Trista

0 人諮詢 一週前上線平均 -- 回覆