關於
設計師的福音來了!!
你有太過於優秀的煩惱嗎?
案子接都接不完,
後端的圖面畫也畫不完,
需要有人幫忙處理。
璟宅製圖所
是一間專門解決
設計師煩惱的問題的工作室
我們擅長
3D渲染圖
720度全景環繞影片
平面系統圖規劃繪製
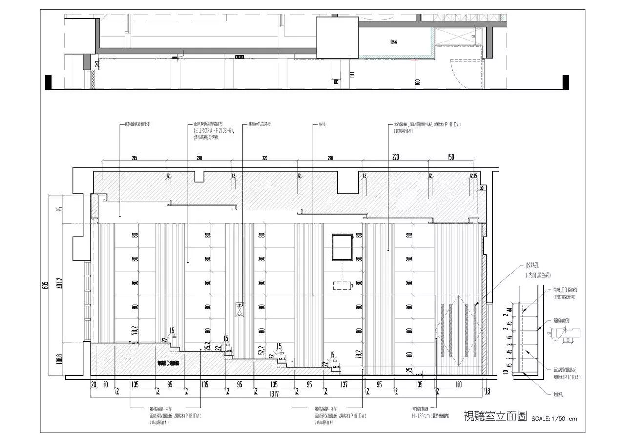
施工圖規劃繪製
讓我們來幫您解決您的煩惱吧!!
快來洽詢璟宅製圖所
擅長工具:
室內景觀。
璟宅製圖所
公司企業
設計師的福音來了!!
你有太過於優秀的煩惱嗎?
案子接都接不完,
後端的圖面畫也畫不完,
需要有人幫忙處理。
璟宅製圖所
是一間專門解決
設計師煩惱的問題的工作室
我們擅長
3D渲染圖
720度全景環繞影片
平面系統圖規劃繪製
施工圖規劃繪製
讓我們來幫您解決您的煩惱吧!!
快來洽詢璟宅製圖所
擅長工具:
1/1