出任務 | 商業外包,一站搞定 商業外包,一站搞定

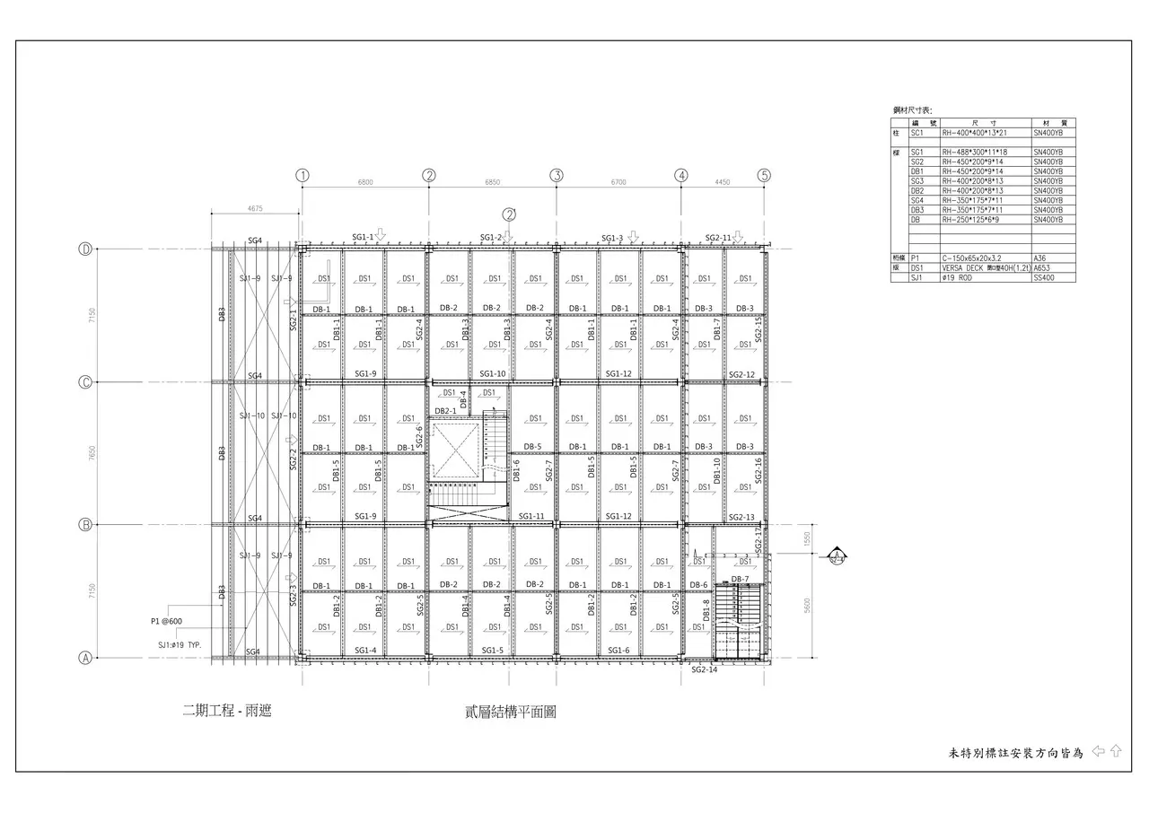
張先生-鋼構拆圖

接案身分:兼職上班族

上線時間:一週前

接案地點:皆可

成交件數:0

接案類別:
# 房屋/建築設計 # 水電及其他工程繪圖

分享連結

關於

鋼構繪圖 ,鋼構拆圖 ,鋼構製作圖 ,廠房繪製 ,大樓帷幕 ,鋼骨橋梁 ,格柵
太陽能模組支架規劃設計

((非兼職,專職接案)) < 價格合理 歡迎詢價 >
查看更多作品 https://sites.google.com/view/gungo

相關連結:

鋼構 繪圖工作室

*請告知會員是透過「Tasker出任務」取得聯繫。

影音(0)

相簿名稱 1/1

提示