出任務 | 商業外包,一站搞定 商業外包,一站搞定

又又

實名認證

(4)

接案身分:兼職上班族

上線時間:一週前

接案地點:台北市、新北市、桃園市、台中市、可遠端

成交件數:2

接案類別:
# 2D製圖 # 室內空間設計 # 3D建模設計 # 房屋/建築設計 # 3D渲染 # 水電及其他工程繪圖 # 展場/舞台設計 # 店面/商業空間設計 # 房地產廣告設計 # 客變/傢配圖設計

分享連結

關於

你好~我是又又~
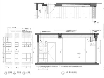
領有中華民國技術士證【建築物室內設計乙級】、【建築物室內裝修工程管理乙級】證照,是建築出身,閒暇時接室內相關案件,可以找我繪製室內施工圖、3D建模&炫圖、BIM(Revit)建築建模....室內相關都可以,建築相關詳談內容(畢竟時間比較長,需要衡量我的時間上配合~~)
如果有想要施工的機會,都可以詳談~
希望有合作機會唷~請多指教~

擅長軟體
Adobe類:PS/AI/LR/AE
空間類2D:CAD
炫圖類3D:SKP/Enscape/Lumion/Twinmotion

相關連結:

擅長工具:

Premiere、 After Effects、 Photoshop、 illustrator、 SketchUp、 CAD、 室內設計、 Lumion、 室內設計師、 twinmotion、 3D建模、 室內裝修、 2D製圖、 ENS。

相簿名稱 1/1

提示