出任務 | 商業外包,一站搞定 商業外包,一站搞定

Ed Lin

實名認證

(3)

接案身分:兼職上班族

上線時間:一週前

接案地點:可遠端

成交件數:2

接案類別:
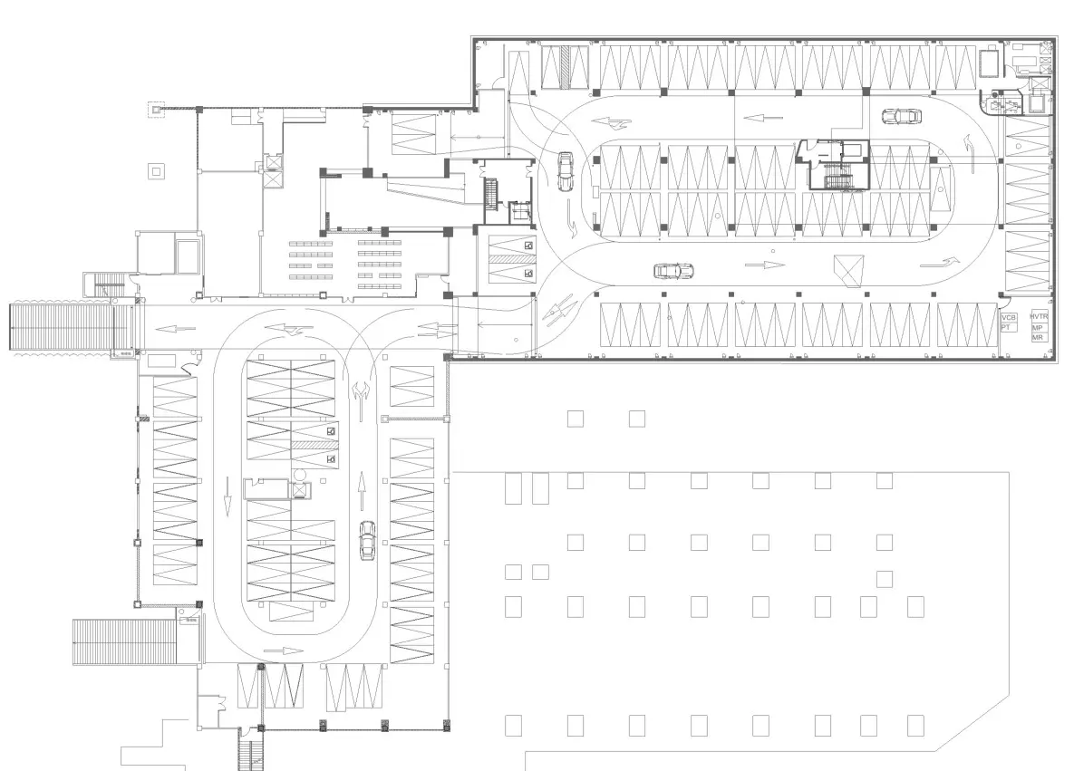
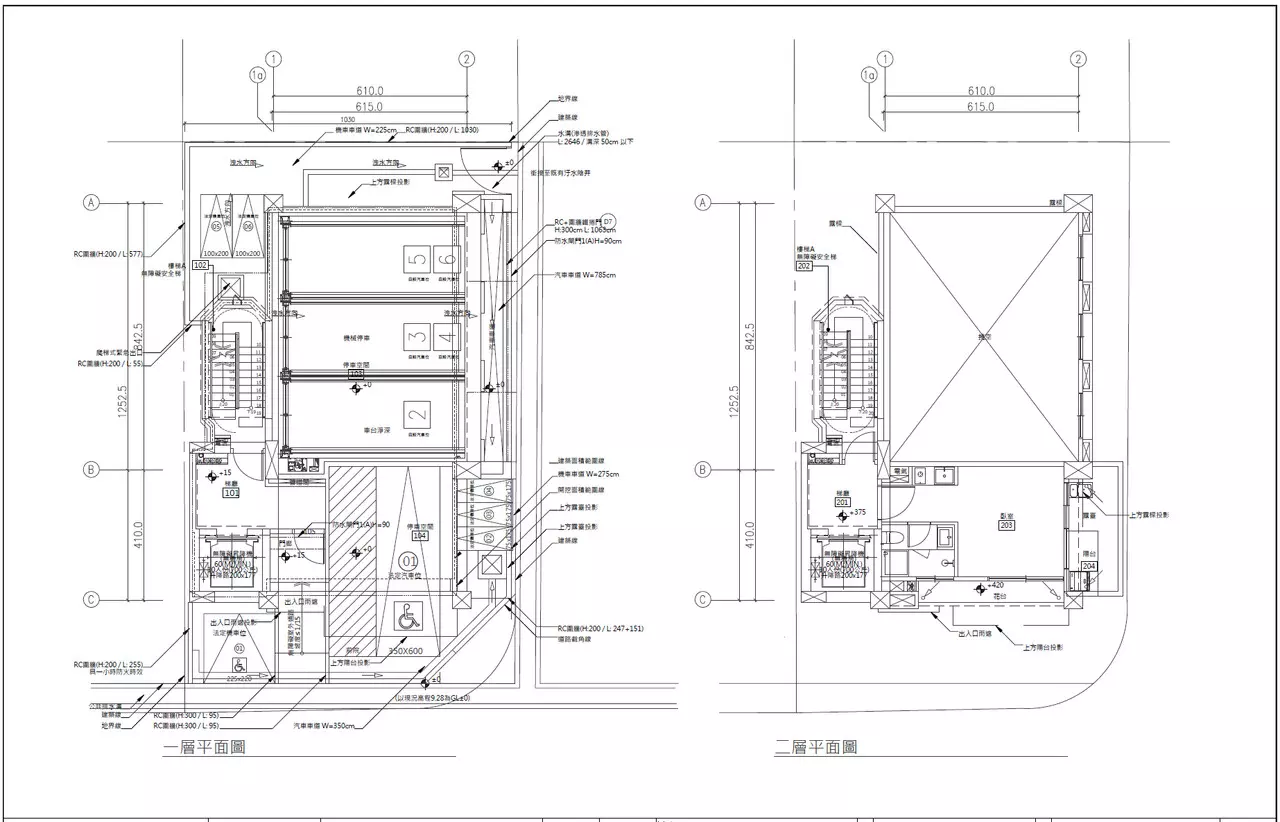
# 3D建模設計 # 3D渲染 # 水電及其他工程繪圖

分享連結

關於

各位案主好 我叫Ed,是一位熱愛創作、設計及繪圖的新手接案人

本人繪圖累積年資約6年/土木規劃設計累積年資約1年/弱電、電氣改善規劃設計累積年資約2年
擅長工具AutoCAD、Sketchup、Lumion
目前就職設計五大管線的工程顧問公司,負責規劃電氣、電信系統

持有日文N2證照,曾在東京打工度假一年,日語教學經驗5年,學生群從國小到社會人士
可配合上課時段 : 平日晚上及假日全日

對於Sketchbook插畫也有興趣,有繪製生日卡片、喜帖及結婚書約等經驗

擅長工具:

AutoCAD、 SketchUp、 Lumion。

影音(0)

評價(3)

聊聊滿意度

  • 非常專業

    1

  • CP值高

    1

  • 理解深入

    1

  • 態度極佳

    1

  • 資歷優秀

    1

  • 回覆神速

    1

相簿名稱 1/1

提示