出任務 | 商業外包,一站搞定 商業外包,一站搞定

巧伊個人工作室

實名認證

(5)

接案身分:全職接案者

上線時間:一週前

接案地點:皆可

成交件數:6

接案類別:
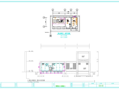
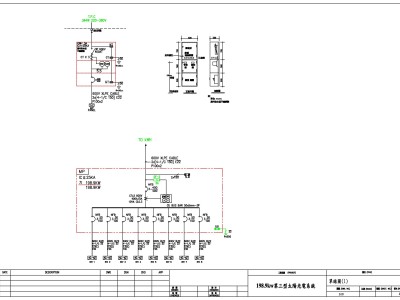
# 水電及其他工程繪圖

分享連結

關於

我有多年的水電工程設計及現場經驗,擅長電氣及弱電.消防.空調.給排水之規劃設計及施工,
參與案件:
華航園區旅館工程(設計&規劃).
日月行館觀光飯店(設計&規劃).
普台中學校舍及校區(設計&規劃).
台中惠文中.小學(設計&規劃).
台東錡麗珊瑚飯店(設計&規劃).
台東紅葉會館&宿舍(設計&規劃).
大里高中宿舍改善(現場監造&設計規劃).
長泓能源科技后里廠區(現場監造).
童綜合醫院宿舍及醫生值班大樓(現場監造&設計規劃).
明基三豐醫療器材台中精機廠(現場監造).
陸軍北大營區(施工圖套繪&施工計畫撰寫).
中台灣影視基地(甲方監造).
巨大機械總部(現場監造).
昇陽開發 INN11新建工程(施工圖套繪).
欣巴巴事業北元段 612 地號新建工程(施工圖套繪).
高柏科技有限公司桃園桃鶯段廠房新建案工程(施工圖套繪).
苗栗縣政府消防局大隊竹南分隊辦公廳舍擴建工程(設計&規劃).
等設計與現場監造經驗

影音(0)

相簿名稱 1/1

提示